Hoàn Thiện Nội Thất Cao Cấp Sang Trọng Cho Nhà 100m2 Chỉ Với 200 triệu.
Với ngân sách của độc giả là 200 triệu đồng, KTS đã tư vấn bố trí nội thất cho căn hộ 100m² khá đẹp và hài hòa.
Thân chào chuyên mục Nhà Đẹp.
Gia đình mình sắp nhận căn hộ có
diện tích 100m² gồm phòng khách và bếp thông nhau, 2 phòng ngủ đều có hệ sửa sổ,
2 wc và 2 logia ở phòng ngủ chính và cuối bếp nên đang có nhu cầu được tư vấn bố
trí nội thất. Gia đình mình có 2 vợ chồng và 1 con trai đang tuổi đi học. Mình
yêu thích phong cách Scandinavian nên rất muốn có được một không gian với phong
cách như vậy.
Rất mong được KTS của chuyên mục tư vấn với chi
phí khoảng 200 triệu đồng cho toàn bộ nội thất.Xin chân thành cảm ơn.
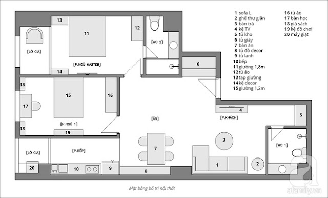
Căn hộ của bạn có ưu điểm là diện
tích khá rộng, và vuông vắn nên việc bố trí nội thất các phòng không quá khó
khăn. Tuy nhiên cái khó khăn của bạn là phần chi phí cho toàn bộ nội thất như vậy
là hơi thấp. Thế nên chúng tôi sẽ chọn giải pháp là giữ nguyên phần hiện trạng
tường thô, chỉ trang trí décor các diện tường bằng tranh tường, sơn tường, đồ nội
thất hơi hướng Scandinavian với giá cả phải chăng.
Mặt bằng bố trí nội thất căn hộ
Ở tiền sảnh, ghế ngồi dạng băng
sát cửa chính, sau lưng là hốc tường âm, tủ kho lưu trữ lớn phía sau cất mọi thứ
đồ lặt vặt giúp tiền sảnh luôn gọn gang, sạch sẽ. Bên cạnh là mảng tường đươc
decor sinh động.
Lối đi vào nhà gọn gàng với tủ âm tường cỡ lớn đằng sau.
Bộ sofa phòng khách gồm một sofa
đơn và sofa L phong cách Scandinavian đơn giản chức năng và màu sắc pastel vui
mắt, mảng tường sau sofa treo tranh trang trí.
Phòng khách với tông màu xanh mint đang rất hot hiện nay.
Bàn trà dạng chân và mặt bàn gỗ
cao su theo phong cách Scandinavian đơn giản, tiện dụng.
Bàn ghế ăn nằm ở vị trí trung tâm
của không gian. Hệ tủ âm tường đa chức năng từ kho lưu trữ đến bàn thờ nhỏ nằm
gọn gàng.
Bếp:
Ở bếp chúng tôi bố trí hệ tủ bếp chữ I để tạo khoảng không đi lại thoáng mát cho hành lang lưu thông. Bạn có thể sử dụng tủ bếp màu trắng để đem lại sự thống nhất cho toàn bộ căn nhà.
Hệ tủ bếp chữ I màu trắng rất tiết
kiệm diện tích.
Lối hành lang lưu thông thông thoáng.
Logia ở phía cuối để máy giặt và chỗ phơi đồ.
Phòng ngủ:
Phòng ngủ chính chúng tôi bố trí rất ít đồ đạc. Bản thân mỗi đồ nội thất chính là đồ decor cho căn phòng. Khoảng lô gia của phòng ngủ master được phủ xanh bằng cả vật liệu nhân tạo lẫn cây xanh tự nhiên, đưa cả thiên nhiên vào trong không gian phòng.
Phòng ngủ chính rất ít đồ đạc đem lại sự thông thoáng cho toàn bộ căn phòng.
Logia được bố trí thành góc thư giãn xanh mát.
Phòng ngủ phụ dành cho con trai còn nhỏ với những đồ nội thất mua sẵn, đơn giản và tiện dụng, dễ dàng thay đổi vị trí.
Bàn học đón ánh sáng tự nhiên.
Phòng vệ sinh giữ lại nguyên hiện trạng gạch ốp và chỉ lắp đặt đồ nội thất.
Tư vấn giá cả:
Phần sửa đồ nội thất:
- Vật tư sơn: Giá: 3.500.000vnđ.
- Mua thiết bị vệ sinh+ bình nóng lạnh: 15.000.000vnđ.
- Dây điện + ổ cắm + đường nước: 15.000.000vnđ.
- Sàn gỗ: 350.000vnđ/m2 x 78m2 = 27.300.000vnđ.
- Thạch cao: 250.000vnđ/m2 x 100m2 = 25.000.000vnđ.
Đồ nội thất:
Phòng khách:
- Sofa: Kích thước (dài x rộng): 2800 x 800. Giá: 14.900.000vnđ.
- Sofa đơn: 1.700.000vnđ.
- Bàn trà chân và mặt bàn gỗ cao su đường kính 80cm, cao 40cm : 1.280.000vnđ.
- Tủ kho: Kích thước (dài x rộng x cao): 1000 x 600 x 2400. Giá: 6.240.000vnđ.
- Kệ TV: Kích thước (dài x rộng): 1400 x 400. Giá 3.900.000vnđ.
- Tủ giày: Kích thước (dài x rộng x cao): 1720 x 600 x 2500. Giá: 11.180.000vnđ.
- Bàn ăn: Kích thước (dài x rộng): 1600 x 900. Giá: 5.990.000vnđ.
- Ghế ăn: Giá: 950.000vnđ x 4 chiếc = 3.800.000vnđ.
- Bếp MFC: Kích thước (dài): 2600. Giá: 5 triệu / mét dài x 2,6m = 13.000.000vnđ.
- Mặt bếp đá kim sa: Kích thước (dài): 2,6m. Giá 600.000vnđ/md. Tổng: 600.000 x 2,6 = 1.560.000 vnđ.
- Gạch ốp tường bếp: 200.000vnđ/m2 x 1.56m2 = 312.000 vnđ.
- Tủ đồ trang trí: Kích thước( dài x rộng x cao ): 2600 x 420 x 2500. Giá: 16.900.000vnđ.
Phòng ngủ 2:
- Kệ đồ chơi: Kích thước(dài x rộng x cao): 1200 x 350 x 1200. Giá: 2.800.000vnđ.
- Giường ngủ: Kích thước (dài x rộng): 1200 x 2000. Giá: 2.900.000vnđ.
- Bàn học: Kích thước (dài x rộng): 1200 x 600. Giá: 900.000vnđ.
- Ghế ngồi: 950.000vnđ.
- Giá sách: 750.000vnđ x 2 chiếc = 1.500.000vnđ.
- Tủ áo: Kích thước (dài x rộng x cao): 1800 x 600 x 2500. Giá: 11.700.000vnđ.
- Đèn thả: 490.000vnđ.
Phòng ngủ master:
- Giường ngủ: Kích thước (dài x rộng): 1800 x 2000. Giá: 10.000.000vnđ.
- Tap giường: Kích thước (dài x rộng): 400 x 500. Giá: 1.490.000vnđ.
- Tủ áo: Kích thước (dài x rộng x cao): 1250 x 600 x 2500. Giá: 8.125.000vnđ.
- Giá sách: Kích thước (dài x rộng): 1000 x 300. Giá: 1.790.000vnđ.
- Cỏ nhân tạo 120.000vnđ/m2 x 3.6m2 = 432.000vnđ.
- Vườn Đứng: Giá: 1.440.000vnđ.
- Ghế ngồi: 950.000vnđ.
Phòng WC 1:
- Tủ lavabo: Kích thước (dài x rộng): 1400 x 500. Giá: 3.000.000vnđ.
- Tủ gương: Kích thước (dài x rộng): 1400 x 180. Giá: 1.500.000vnđ.
- Kệ đồ: 790.000vnđ.
Phòng WC2:
- Tủ lavabo: 1500 x 500. Giá: 3.500.000vnđ.
- Tủ gương: 1500 x 180. Giá 1.800.000vnđ.
- Kệ đồ: 790.000vnđ.
Tổng chi phí: 223,409 triệu
Tư vấn bởi KTS: Lê Quang Thạch


















